︎
MICHELLE DE JONG
DESIGN
architecture | interiors | art
SELECTED PROJECTS
ABOUT
SERVICES
ART
︎
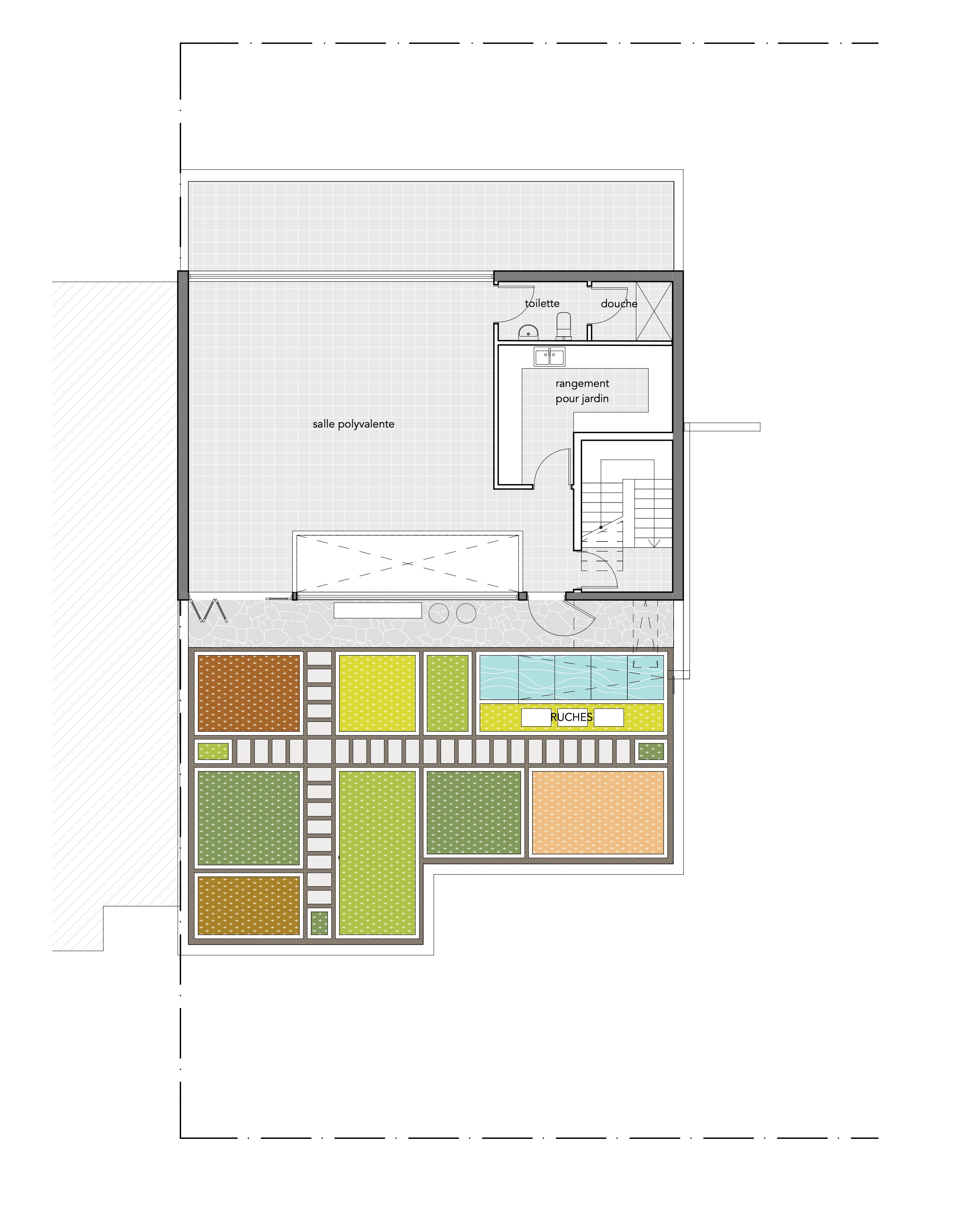
COMMUNITY CENTRE FOR ADOLESCENTS
Montreal, Canada
In collaboration with Claire Davenport
Designed 2022
Under assessment
Next︎
.
︎