︎
MICHELLE DE JONG
DESIGN
architecture | interiors | art
SELECTED PROJECTS
ABOUT
SERVICES
ART
︎
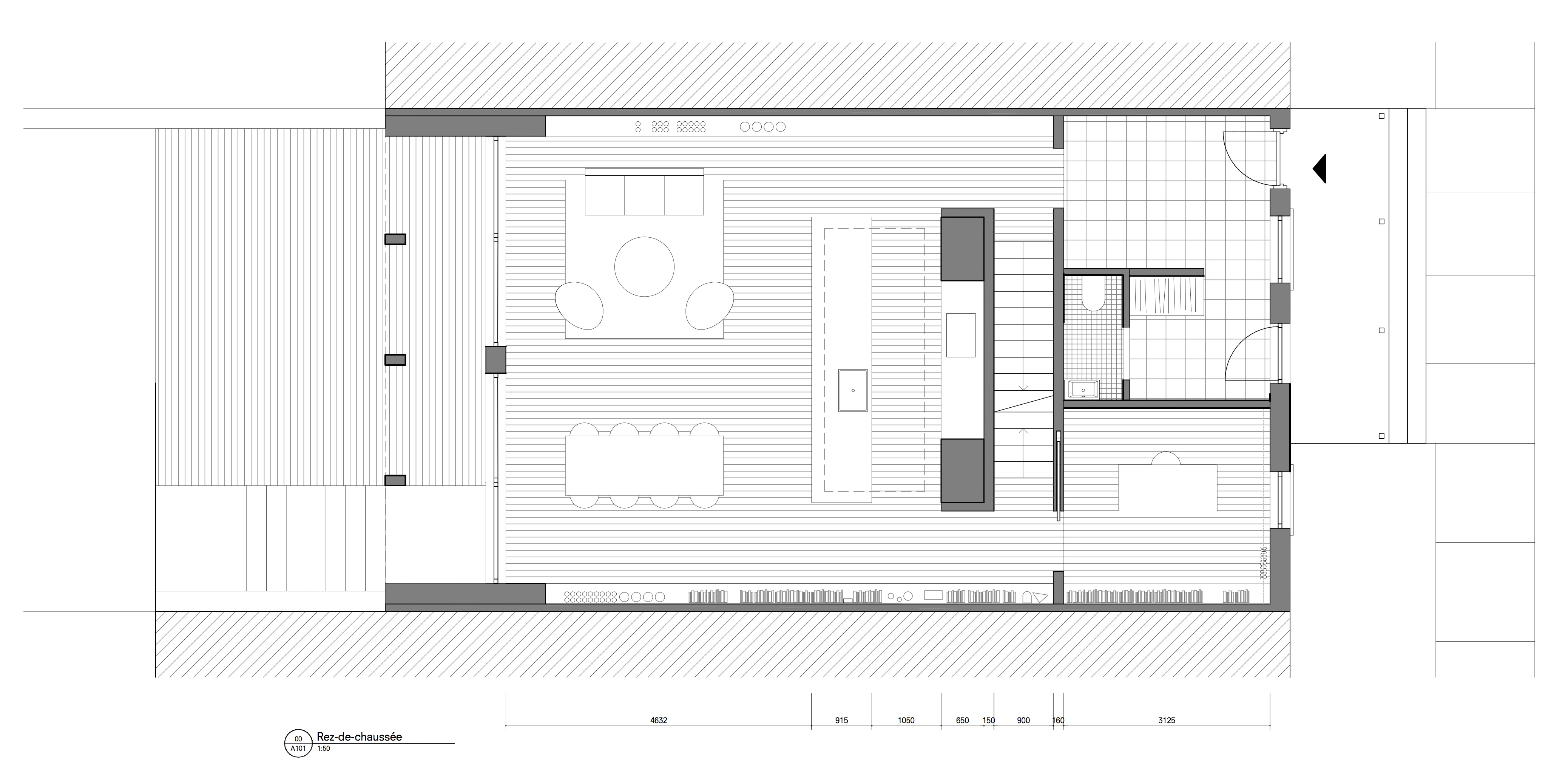
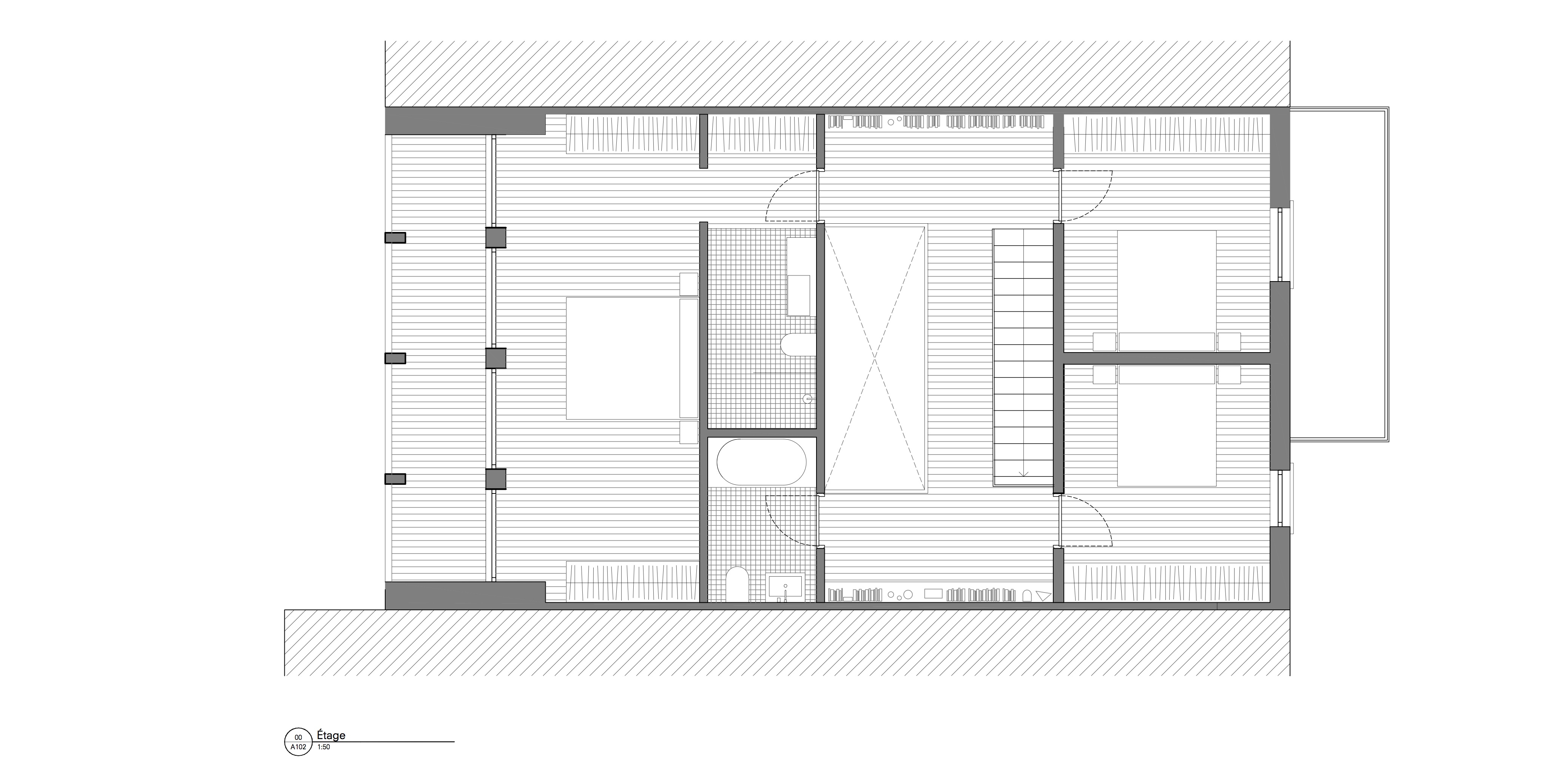
INNER CITY HOME DESIGN
Mile End, Montreal, Quebec
In collaboration with Pelleter de Fontenay
Under construction
This existing Montreal duplex is transformed in a single family home for an anesthesiologist and industrial designer.
Next︎
.
︎