︎
MICHELLE DE JONG
DESIGN
architecture | interiors | art
SELECTED PROJECTS
ABOUT
SERVICES
ART
︎
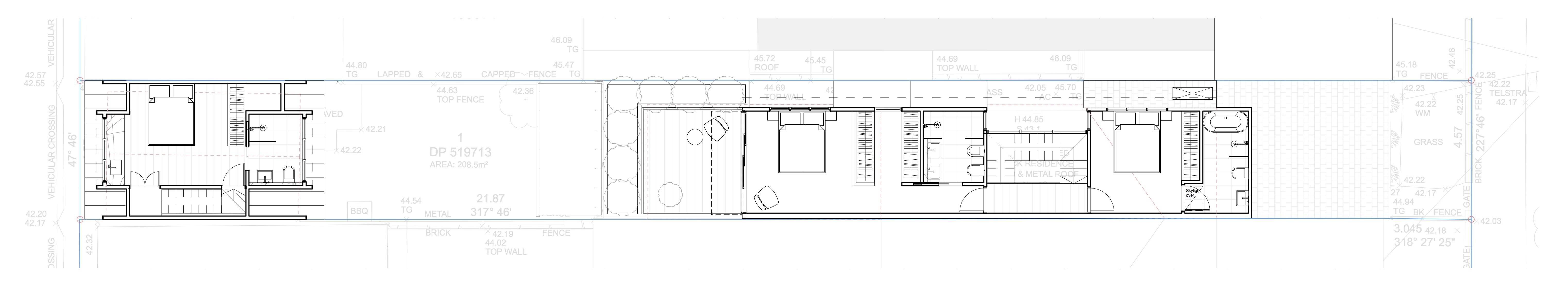
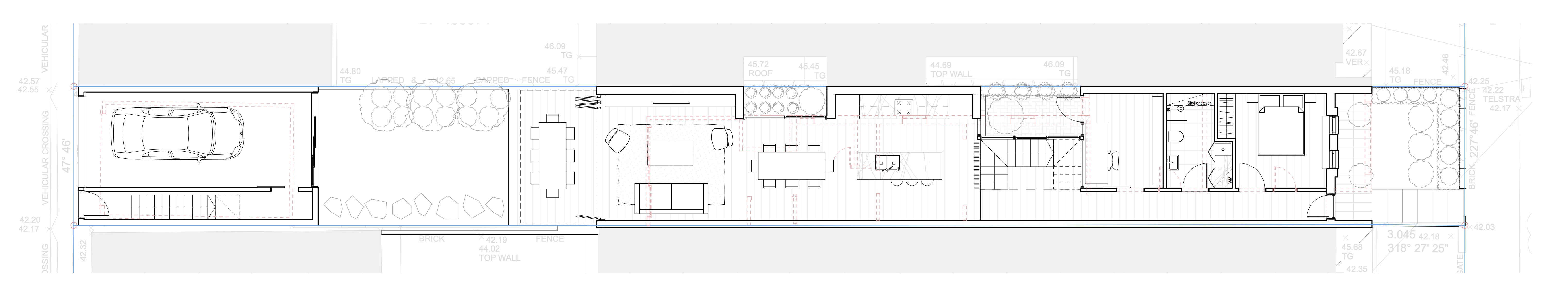
SYDNEY TERRACE AND GRANNY FLAT
Randwick, Sydney, Australia
In collaboration with Mark Shapiro
Project completed 2020
A renovation and second floor addition to a run-down long and narrow terrace.
Next︎
.
︎